EI LORRAINE BAUDRY
Architecte de HMONP


CONTACT
EI Lorraine Baudry
Architecte de HMONP
06 73 44 76 61
lbarchitecture75@gmail.com

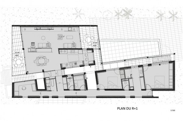
MAISON S
Construction d’une maison – Sélection Prix Archinovo 2015

Agence : Atelier Frank Salama / Statut : Chef de projet
MO : Privée • Lieu : Saint-Maur 94 • SP : 200m² • Coût : 900 000 €HT
Réalisations DCE : Chantier • État : Livrée

Photos : © Hervé Abbadie